RESIDENCIAL "SANTA BEATRIZ"
RESIDENCIAL «BUENA VISTA PARK»
Proyecto inmobiliario, ubicado en una de las mejores zonas de Lima, que ofrece lo que necesitas para vivir en armonía, en un entorno residencial con gran desarrollo y seguridad.

Pisos
2 sótanos, semisótano, 8 pisos y azotea.

Departamentos
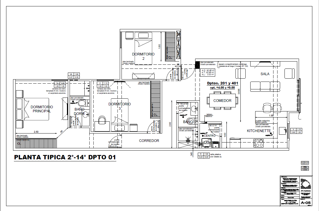
16 unidades (14 flats y 2 duplexs).
Área Ocupada:
Flats: desde 126.61 hasta 135.38 m2.
Duplexs: de 253.105 m2.

Estacionamientos
26 exclusivos (10 dobles y 6 simples).
2 para visitas (1 doble).

Depósitos
3 en estacionamientos
(1 en doble y 2 en simples).

Área Techada
3,100.83 m2.

Año de Ejecución
2019 - 2020
Características
Todos los departamentos con balcón y vista a áreas verdes.
Departamentos flats con 3 dormitorios, estar, 3 baños y área de servicio.
Departamentos duplexs con 4 dormitorios, 4 baños, 2 estares, terrazas, techos verdes y área de servicio.
Recepción con portero eléctrico e intercomunicador en semisótano.
Estacionamiento para bicicletas (uso múltiple) y baño de visitas en semisótano.
Ascensor marca Thyssenkrupp (España) para 6 pasajeros.
Elevador para discapacitados.
Cuarto de basura y depósitos en sótano 1.
Cuarto de bombas con cisterna doméstica y cisterna de agua contraincendio . Tanque elevado de agua.
Sistema de extracción de Monóxido de Carbono e inyección de aire.
Sistema contraincendio.
Sistema integral de seguridad.
Escalera de evacuación y vestíbulo previo con sistema de ventilación.
Línea matriz, línea montante y red interna de Gas Natural
Recorrido Virtual
Todas las imágenes, planos, medidas y áreas, son referenciales por lo que podrían sufrir cambios al momento de desarrollarse el proyecto.
Así mismo los elementos decorativos, acabados y mobiliarios son propuestas del proyectista que no se incluyen en la oferta comercial y no comprometen a la empresa inmobiliaria.







